Architecte d'intérieur pour Avant-projet : étude de conception d'aménagement AVP d'un salon avec poêle et meuble TV décoratif pour une rénovation de maison sur Marseille 13008

Architecte d'intérieur pour Avant-projet : étude de conception d'aménagement AVP d'un salon avec poêle et meuble TV décoratif pour une rénovation de maison sur Marseille 13008

 

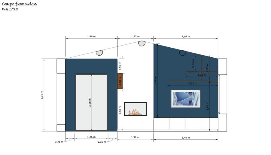
Architecte d’intérieur : Mission en conception d’avant-projet d’architecture d’intérieur en réalisation de pièces graphiques, coupes, plans, élévations, esquisses, visuelles 3D et dossier de consultation des entreprises. Une mission d’architecture confiée à notre cabinet AGENCE MRC. Une conception "AVP" pour une rénovation de maison sur Marseille 13008 pour la totalité de l'habitation, dans cet article nous vous présentons une partie du travail de notre cabinet sur une mission d’architecte d’intérieur, avec aménagement sur mesure. Il est possible d'apprécier par exemple les étagères murales fixées en bois noble, la niche décorative en bois attenante au poêle, un meuble de rangement conçu pour l’intervention de menuisier, ainsi que les solutions de traitement  peinture pour les poutres et autres éléments de bois. Indiquant aussi les emplacements de l'éclairage et prises électriques, ainsi que des changements dans la disposition du mobilier et des appareils. Une représentation qui donne un aperçu de l'agencement du salon et de la salle à manger.

 

 

 

Le cabinet d'architecte d'intérieur AGENCE MRC intervient à Aix-en-Provence, Marseille, allauch, plan-de-cuques et jusqu'à Cassis, en conception d’avant-projet (plans, visuels, descriptifs et consultation d’entreprises) et en suivi des travaux. Nous disposons d’une solide expérience en rénovation, agencement et assurances décennales attenantes. Pour la réhabilitation d’une maison, appartement, cuisine, salle de bains, création suites parentales avec dressing et, plus généralement, tout   relatif à l'architecture intérieure et extérieure pour les phases de conception, suivi de réalisation et coordination des travaux.

 

Ces éléments graphiques et plans issue de avant-projet montrent des projections en vue en coupe du salon avec des mesures précises et application en phase exécution. Précisant l'emplacement des portes, fenêtres, et d’éléments comme un insert de cheminée et un téléviseur. Les dimensions fournies sur les éléments permettent de comprendre l'échelle de la pièce et la relation spatiale entre les différents composants, un travail d'architecte d'intérieur permettant ainsi une facilité pour les phases de réalisation.

 

 

Cette avant-projet d’agencement d’architecte d’intérieur sur Marseille 13008 cherche à moderniser et optimiser un salon / entrée  en mettant l'accent sur la lumière naturelle, l'efficacité énergétique (par exemple, par l'utilisation de menuiseries en aluminium et de doublage), et l'intégration harmonieuse de la technologie dans le design (comme la télévision "Frame"). Les choix de matériaux suivant les conseil et recommandation d'architecte d'intérieur (bois, aluminium), les couleurs et les solutions d'éclairage sont conçus pour créer une ambiance contemporaine et chaleureuse de cette habitation et au meuble TV décoratif et aérien.

 

L'approche de design pour ce salon-séjour mise sur une palette de couleurs apaisantes et des matériaux sélectionnés avec soin par un architecte d'intérieur de Marseille pour évoquer une sensation de confort, beauté et de tranquillité. Les poutres et les éléments de boiseries arborent des teintes douces de gris qui se fondent harmonieusement dans l'environnement de cet aménagement, apportant une touche de sérénité contemporaine. Le mobilier, d'un blanc mat lisse, confère à cette pièce une luminosité et une sensation d'ouverture, tandis que les détails en bois naturel insufflent une chaleur et une texture invitant au toucher. L'emploi judicieux du bleu sur les murs sert de contraste saisissant, injectant de la vitalité et du caractère sans perturber l'équilibre chromatique global. Cette touche de couleur agit comme un ancrage visuel, attirant le regard et ajoutant une dimension


La disposition et l'association du bleu profond, du blanc pur et de l'éclat du bois proposent un dialogue visuel intéressant, qui rend l'espace à la fois moderne et chaleureux. Ce projet d'architecte d'intérieur incarne la fusion entre fonctionnalité et forme, où chaque choix de design qui est aussi bien pratique que esthétiquement avancé. L'intégration intelligente de solutions technologiques modernes s'ajout une finesse du décor, offrant une expérience de vie résolument moderne tout en restant fidèle à un confort domestique traditionnel.
 

Si vous souhaitez échanger sur les possibilités pour un accompagnement pour un avant-projet et accompagnement en rénovation d'appartement ou maison sur Marseille, Aix-en-Provence et leurs environs, écrivez-nous ou appelez-nous.

Cliquez pour voir d'autres réalisations de l'Agence MRC

   Aix-En-Provence 13100

          Marseille 13007

          Marseille 13008

  Aix-En-Provence  13090

Votre message issu du formulaire a été envoyé avec succès.
Vous avez entré les données suivantes :

Formulaire de contact

Veuillez corriger l'entrée des champs suivants :
Une erreur s'est produite lors de la transmission du formulaire. Veuillez réessayer ultérieurement.

Remarque : Les champs suivis d'un astérisque * sont obligatoires.

Version imprimable | Plan du site
Architecte d'intérieur et Paysagiste Concepteur Agence MRC© | Rénovation Décoration Aménagement Travaux extension | M.R.C SAS Entreprise spécialisée dans la Conception, Suivi et coordination de travaux, Idées et conseils décoration | Accompagnements sur Marseille, Aix-en-Provence et dans les Bouche du Rhône | Pour tous projet d'appartement, maison, Jardin, Piscine. Powered by MR G.